Page 43 - haacon nutzfahrzeugtechnik
P. 43
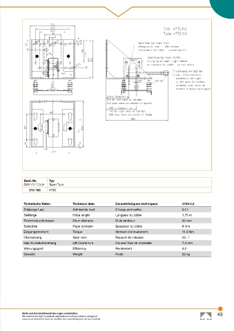
Best.-Nr. Typ
O/N° / N° Code Type / Type
213 163 4732
Technische Daten Technical data Caractéristiques techniques 4732.0,2
Zulässige Last Admissible load Charge admissible 0,2 t
Seillänge Robe length Longueur du câble 1,75 m
Trommeldurchmesser Drum diameter Ø du tambour 50 mm
Seilstärke Rope diameter Épaisseur du câble 8 mm
Eingangsmoment Torque Moment d’enroulement 11,6 Nm
Übersetzung Gear ratio Rapport de vitesses 25 : 1
Hub / Kurbelumdrehung Lift / Crank turn Course / Tour de manivelle 7,3 mm
Wirkungsgrad Efficiency Rendement 0,2
Gewicht Weight Poids 22 kg
Maße und Konstruktionsänderungen vorbehalten. 43
We reserve the right to amend specifications without notice or obligation.
haacon se réserve le droit de modifier les caractéristiques de son matériel.

