Page 53 - haacon nutzfahrzeugtechnik
P. 53
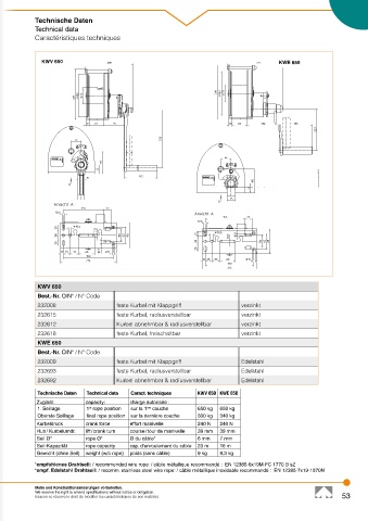
Technische Daten
Technical data
Caractéristiques techniques
KWV 650 KWE 650
KWV 650
Best.-Nr. O/N° / N° Code
232008 feste Kurbel mit Klappgriff verzinkt
232615 feste Kurbel, radiusverstellbar verzinkt
232612 Kurbel abnehmbar & radiusverstellbar verzinkt
232618 feste Kurbel, freischaltbar verzinkt
KWE 650
Best.-Nr. O/N° / N° Code
232009 feste Kurbel mit Klappgriff Edelstahl
232693 feste Kurbel, radiusverstellbar Edelstahl
232692 Kurbel abnehmbar & radiusverstellbar Edelstahl
Technische Daten Technical data Caract. techniques KWV 650 KWE 650
Zuglast: capacity: charge autorisée :
1. Seillage 1 rope position sur la 1 couche 650 kg 650 kg
ère
st
Oberste Seillage final rope position sur la dernière couche 330 kg 340 kg
Kurbeldruck crank force effort manivelle 240 N 240 N
Hub / Kurbelumdr. lift / crank turn course / tour de manivelle 39 mm 39 mm
Seil Ø* rope Ø* Ø du câble* 6 mm 7 mm
Seil-Kapazität rope capacity cap. d‘enroulement du câble 23 m 16 m
Gewicht (ohne Seil) weight (w/o rope) poids (sans câble) 9 kg 9,3 kg
*empfohlenes Drahtseil: / recommended wire rope: / câble métallique recommandé : EN 12385-6x19M-FC 1770 B sZ
*empf. Edelstahl Drahtseil: / recomm. stainless steel wire rope: / câble métallique inoxidable recommandé : EN 12385-7x19-1570N
Maße und Konstruktionsänderungen vorbehalten.
We reserve the right to amend specifications without notice or obligation.
haacon se réserve le droit de modifier les caractéristiques de son matériel. 53

