Page 37 - haacon industriehebetechnik
P. 37
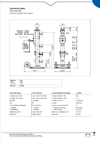
Technische Daten
Technical data
Caractéristiques techniques
Best.-Nr. Typ
O/No. Type
N° Code Type
230 747 1095.8
Technische Daten Technical data Caractéristiques techniques 1095.8
zulässige Last - Kopf max. load on head claw charge autorisée - tête 8 t
zulässige Last - Klaue max. load on lower claw charge autorisée - sabot 7 t
Bauhöhe o/a height hauteur hors tout 1.200 mm
Hub lift course 480 mm
Hub pro Kurbelumdrehung: lift / crank turn: course / tour de manivelle :
– Lastgang – low gear – vitesse sous charge 0,53 mm
– Schnellgang – fast gear – vitesse rapide 5,3 mm
Kurbeldruck bei 8 t crank force at 8 t effort sur manivelle pour 8 t 110 N
Gewicht ca. weight approx. poids env. 75 kg
Maße und Konstruktionsänderungen vorbehalten.
We reserve the right to amend specifications without notice or obligation. 37
haacon se réserve le droit de modifier les caractéristiques de son matériel.

