Page 69 - haacon industriehebetechnik
P. 69
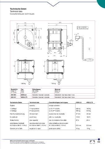
Technische Daten
Technical data
Caractéristiques techniques
500 kg 750 kg
Bestell-Nr. Typ Befestigung Material
Order N° Type Mounting Material
N° Code Type Fixation Finition
205 804 4585.0,5 Konsole / bracket / console Edelstahl / stainless steel / inox
209 541 4585.0,75 Konsole / bracket / console Edelstahl / stainless steel / inox
Technische Daten Technical data Caractéristiques techniques 4585.0,5 4585.0,75
Zuglast: capacity: charge autorisée :
1. Seillage 1 rope position sur la 1 ère couche 500 kg 750 kg
st
4. Seillage 4 rope position sur la 4 ème couche 350 kg 445 kg
th
Hub / Kurbelumdrehung lift / crank turn course / tour de manivelle 37 mm 30 mm
Kurbeldruck crank force effort sur manivelle 170 N 180 N
Seilaufnahme rope capacity cap. d’enroulement du câble 25 m 26 m
empfohlenes Drahtseil: recommended wire rope: câble métallique récommandé :
EN 12385-6x19M-FC 1770 B sZ EN 12385-6x19M-FC 1770 B sZ EN 12385-6x19M-FC 1770 B sZ Ø 6 mm Ø 6 mm
Gewicht (ohne Seil) weight (w / o rope) poids (sans câble) 10 kg 10 kg
Maße und Konstruktionsänderungen vorbehalten.
We reserve the right to amend specifications without notice or obligation. 69
haacon se réserve le droit de modifier les caractéristiques de son matériel.

