Page 75 - haacon industriehebetechnik
P. 75
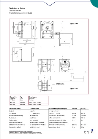
Technische Daten
Technical data
Caractéristiques techniques
Typ(e) 4185
Typ(e) 4751
Bestell-Nr. Typ Befestigung
Order N° Type Mounting
N° Code Type Fixation
200 046 4185.0,5 Wand / wall / murale
200 045 4751.0,4 Wand / wall / murale
Technische Daten Technical data Caractéristiques techniques 4185.0,5 4751.0,4
Zuglast: capacity: charge autorisée :
st
- 1. Seillage - 1 rope position - sur la 1 ère couche 500 kg 400 kg
Hub / Kurbelumdrehung: lift / crank turn: course / tour de manivelle : 13 mm 7,5 mm
Kurbeldruck crank force effort sur manivelle 138 N 180 N
Seilaufnahme rope capacity cap. d’enroulement du câble 14 m 4 m
empfohlenes Drahtseil: recommended wire rope: câble métallique récommandé :
EN 12385-6x19M-FC 1770 B sZ EN 12385-6x19M-FC 1770 B sZ EN 12385-6x19M-FC 1770 B sZ Ø 6 mm Ø 6 mm
Gewicht (ohne Seil) weight (w/o rope) poids (sans câble) 12 kg 6 kg
Maße und Konstruktionsänderungen vorbehalten.
We reserve the right to amend specifications without notice or obligation. 75
haacon se réserve le droit de modifier les caractéristiques de son matériel.

